リニューアル工事終了のお知らせ
昨年の11月からのリニューアル工事が無事に終了し、新たに特別室「りんどう」「すずらん」「こまくさ」のお部屋が完成いたしました。
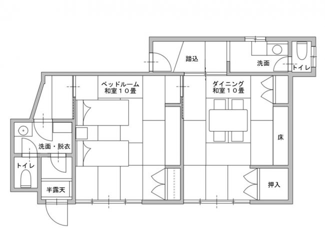
りんどうとすずらんは、和室のリビング・ダイニング、ベッドルーム、源泉100%温泉かけ流しの半露天風呂が備わった特別室でございます。
お食事は朝夕ともお部屋にてお召し上がれます。
檜の香りがする半露天風呂をお楽しみいただけると幸いでございます。
皆様のご来館を心よりお待ち申し上げております。
設計 降幡建築設計事務所
施工 山共建設株式会社
松本ガス 大和ホーム工業 西電設工事 辺見内装 木曽漆器・庄太郎 トータルたたみサービス 他、左官工事、足場工事、解体工事の皆様、お世話になりました。ありがとうございました。


